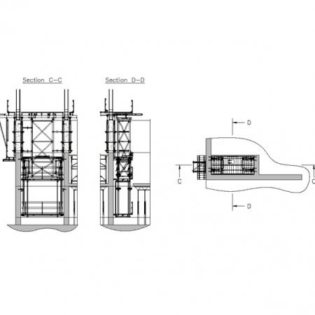
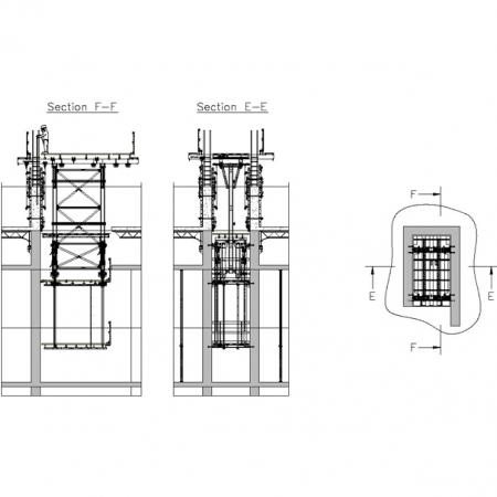
Az USA szórakoztatási Mekkája újabb attrakcióval gazdagodott: A Caesars Palace II hotel & kaszinó komplexumot Doka SKE önkúszó zsaluval építették fel.
All listed fields are required. By using our site, necessary cookies are set on your device for the execution of the service. Find out more in our data privacy policy https://www.doka.com/data-privacy.
You can now switch back to the QR code reader to request information on other topics. You have the option to save your contact details to be automatically used for your next request.
A technikailag szükséges cookie-k a weboldal megfelelő és biztonságos működéséhez és az Ön hozzájárulásának kezeléséhez szükségesek. Ha Ön nem járul hozzá az adatainak a technikailag szükséges cookie-k beállítása révén történő feldolgozásához, akkor nem tud hozzáférni a weboldalhoz.
Az Ön előzetes önkéntes hozzájárulásával egyéb sütiket és harmadik féltől származó alkalmazásokat is használunk. Ez segít nekünk abban, hogy weboldalunk optimális teljesítményt nyújtson, különösen
A „Minden cookie engedélyezése (beleértve az amerikai szolgáltatókat is)” gombra kattintva Ön hozzájárul az összes cookie telepítéséhez és használatához. A 'Hozzájárulok a kiválasztotthoz' gombra kattintva Ön hozzájárul a jelölőnégyzetekkel kiválasztott cookie-khoz. Ez az adatok harmadik országokba, például az USA-ba történő továbbításával is járhat. Ha az Ön által kiválasztott beállítások olyan szolgáltatókat is tartalmaznak, amelyek olyan harmadik országokba továbbítanak adatokat, ahol nincs a GDPR 45. cikke szerinti megfelelőségi határozat és a GDPR 46. cikke szerinti megfelelő garanciák, az Ön hozzájárulása erre is kiterjed. Fennállhat annak a kockázata, hogy az Ön ily módon továbbított adataihoz az ilyen harmadik országok hatóságai ellenőrzési és felügyeleti céllal hozzáférhetnek, és hogy ez ellen nincs hatékony jogorvoslati lehetőség. A „Visszautasítás” gombra kattintva, vagy a weboldal alján található cookie-beállításokra kattintva és a megfelelő jelölőnégyzetek segítségével a cookie-beállítások módosításával elutasíthatja a hozzájárulást igénylő összes cookie-t. A weboldal alján található cookie-beállítások ra kattintva bármikor visszavonhatja hozzájárulását a jövőre nézve és indoklás nélkül.
További információkat a cookie-król Adatvédelmi szabályzatunkban talál. Lehetőséget biztosítunk Önnek a cookie-k kiválasztására is (speciális cookie-beállítások).















