Рами щитів виготовлені з міцних сталевих профілів, стійких до скручування і не потребують додаткової жорсткості. Високоякісне покриття гарячим цинком забезпечує дуже тривалий термін служби. Плита Xlife забезпечує велику кількість циклів бетонування з отриманням якісних поверхонь бетону. Особливе покриття опалубної плити запобігає тріщинам та набрякам в місцях використання цвяхів.
Декілька ударів молотка по клину швидкодіючого затискача Frami дозволяють досягти рівного, правильно вирівняного з’єднання щитів опалубки, стійкого до розтягуючих зусиль.
Швидкодіючий затискач Frami може бути встановлений майже у будь-якому місці рами. Тому є можливість встановлювати щити опалубки зі зміщенням по висоті один відносно до іншого. Так опалубка легко адаптується до різних задач, наприклад, під час використання на сходах або на нерівній поверхні.
Універсальні щити Frami Xlife дозволяють формувати прямі кути з товщиною стіни до 60 см із кроком регулювання 5 см.
Для формування гострих та тупих кутів використовують оцинковані шарнірні кутові елементи Frami.
Із диапазоном регулювання 15 см регульований затискач Frami точно відповідає системному кроку. Це означає, що для кожної стіни потрібна лише одна ділянка із вставкою.
Анкерний кронштейн Frami дозволяє встановити верхню стяжку понад щитом, що спрощує зняття опалубки.
Система анкерування опалубки фундаменту складаеться з пласкої опалубної стяжки та скоби Frami, для товщини стінки від 10 до 80 см із кроком регулювання 5 см – без встановлення стяжок крізь тіло бетону та будь яких додаткових деталей, що зазвичай виготовляють вручну з дерева.
Нижній край щита фіксується за допомогою фундаментних скоб та перфорованої стрічки, що забезпечує крок регулювання 5 см.
Круговий опалубний елемент розширує можливості застосування системи. З його допомогою швидко та зручно формується опалубка криволінійних стін.
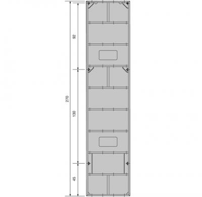
Надійна конструкція щитів і асиметрично розташовані опалубні стяжки дозволяють щитам висотою 2,70 м витримувати повний гідростатичний тиск бетону.
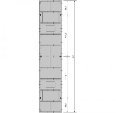
Для щитів висотою 3,00 м застосовують три опалубні стяжки.
Широкий асортимент аксесуарів гарантує безпеку під час бетонування, навіть для висот 2,70 м або 3,00 м, яке виконується однією операцією без перерви.
Універсальні щити Frami Xlife шириною 75 тa 90 см дозволяють легко та швидко формувати опалубку прямокутних колон, прямих кутів та торцевих ділянок.
Щити Frami Xlife є дуже зручним рішенням для формування опалубки фундаментів.
Щити Frami Xlife легко комбінуються із розпалубним кутом Framax I за допомогою адаптерів профілю.
Результати не знайдено.
















