
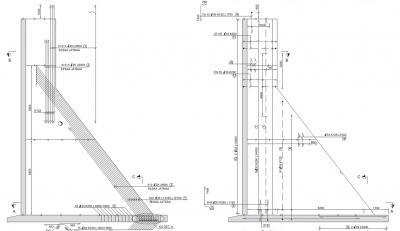
Konttisataman laajennus. 36 kpl 14,1m korkeaa laiturielementtiä ja 35 kpl vaakassa valettavaa elementtiä. Pystyelementit muotitettiin ja valettiin kolmessa jalujaksossa.
Haasteet: Haasteena projektin tiukka aikataulu, nopea aloitus sopimuksen synnyttyä, suuri kaluston tarve sekä haastavat mittatarkkuusvaatimukset.
Ratkaisu:Muottijärjestelmänä Doka Framax Xlife järjestelmämuotti. Kiipeävänä tasona Doka Kiipeäväjärjestelmä MF240.
Valmistumisvuosi
2017
Kauan työmaa kesti (kk)
6 ja jatkuu.
Asiakas
Destia Oy
Projektin linkki
Muottivuokraus
suunnittelu ja rahtipalvelut
All listed fields are required. By using our site, necessary cookies are set on your device for the execution of the service. Find out more in our data privacy policy https://www.doka.com/data-privacy.
You can now switch back to the QR code reader to request information on other topics. You have the option to save your contact details to be automatically used for your next request.
Teknisesti välttämättömiä evästeitä tarvitaan verkkosivuston asianmukaiseen ja turvalliseen toimintaan ja suostumuksesi hallinnointiin. Jos et hyväksy tietojesi käsittelyä teknisesti välttämättömien evästeiden avulla, et voi käyttää verkkosivustoa.
Käytämme myös muita evästeitä ja kolmannen osapuolen sovelluksia vapaaehtoisella suostumuksellasi. Tämä auttaa meitä varmistamaan, että verkkosivustomme toimii optimaalisesti, ja erityisesti
Napsauttamalla ”Salli kaikki evästeet (ml. yhdysvaltalaiset palveluntarjoajat)” annat suostumuksesi kaikkien evästeiden asentamiseen ja käyttöön. Napsauttamalla ”Hyväksyn valitut” hyväksyt valintaruuduilla valitsemasi evästeet. Tämä voi myös tarkoittaa tietojen siirtoa kolmansiin maihin, kuten Yhdysvaltoihin. Jos valitsemasi asetukset sisältävät myös palveluntarjoajia, jotka siirtävät tietoja kolmansiin maihin, joissa ei ole yleisen tietosuoja-asetuksen 45 artiklan mukaista riittävyyspäätöstä eikä yleisen tietosuoja-asetuksen 46 artiklan mukaisia asianmukaisia suojatoimia, suostumuksesi kattaa myös tämän. Saattaa olla olemassa riski, että näin siirrettyihin tietoihin voi päästä käsiksi näiden kolmansien maiden viranomaiset valvonta- ja seurantatarkoituksessa ja että tätä vastaan ei ole tehokkaita oikeussuojakeinoja. Voit hylätä kaikki suostumusta edellyttävät evästeet napsauttamalla ”Hylkää” tai säätämällä evästeasetuksia napsauttamalla evästeasetuksia tämän verkkosivuston alareunassa ja käyttämällä vastaavia valintaruutuja. Voit peruuttaa suostumuksesi milloin tahansa tulevin vaikutuksin ja ilmoittamatta syytä klikkaamalla tämän verkkosivuston alaosassa olevaa evästeasetuksia.
Löydät lisätietoja evästeistämme tietosuojakäytännöstämme. Tarjoamme sinulle myös mahdollisuuden valita evästeet (evästeiden lisäasetukset).


