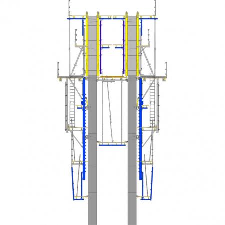
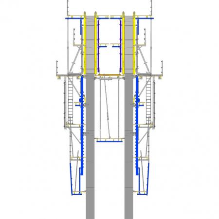
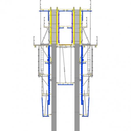
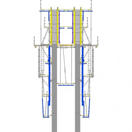
På den japanske øya Honsu utvides motorveien mellom Tokyo og Nagoya. Over 100 000 kjøretøyer passerer strekningen daglig. For byggeseksjonen i Aichi-distriktet er det japanske byggefirmaet Kajima ansvarlig og har gitt Doka Japan oppdraget med å levere en forskalingsløsning for seks bropilarer.
All listed fields are required. By using our site, necessary cookies are set on your device for the execution of the service. Find out more in our data privacy policy https://www.doka.com/data-privacy.
You can now switch back to the QR code reader to request information on other topics. You have the option to save your contact details to be automatically used for your next request.
Teknisk nødvendige informasjonskapsler er nødvendige for at nettstedet skal fungere korrekt og sikkert, og for å administrere samtykket ditt. Hvis du ikke samtykker i behandlingen av opplysningene dine gjennom innstillingen av teknisk nødvendige informasjonskapsler, vil du ikke få tilgang til nettstedet.
Vi bruker også andre informasjonskapsler og tredjepartsapplikasjoner med ditt frivillige forhåndssamtykke. Dette hjelper oss med å sikre at nettstedet vårt fungerer optimalt, spesielt
Ved å klikke på «Tillat alle informasjonskapsler (inkl. amerikanske leverandører)», samtykker du til installasjon og bruk av alle informasjonskapsler. Ved å klikke på «Godta valgte», samtykker du til de informasjonskapslene du har valgt med avmerkingsboksene. Dette kan også innebære overføring av data til tredjeland, for eksempel USA. Hvis innstillingene du har valgt, også omfatter leverandører som overfører data til tredjeland der det ikke foreligger en beslutning om tilstrekkelig beskyttelsesnivå i henhold til artikkel 45 i personvernforordningen og ingen egnede garantier i henhold til artikkel 46 i personvernforordningen, gjelder ditt samtykke også for dette. Det kan være en risiko for at myndighetene i disse tredjelandene kan få tilgang til opplysningene dine for kontroll- og overvåkingsformål, og at det ikke finnes noen effektive rettsmidler mot dette. Du kan avvise alle informasjonskapsler som krever samtykke ved å klikke på «Avvis» eller ved å justere dine innstillinger for informasjonskapsler ved å klikke på innstillinger for informasjonskapsler nederst på dette nettstedet og bruke de tilsvarende avmerkingsboksene. Du kan når som helst trekke tilbake samtykket ditt med fremtidig virkning og uten å oppgi noen grunn ved å klikke på innstillinger for informasjonskapsler nederst på dette nettstedet.
Du finner mer informasjon om våre informasjonskapsler i vår personvernerklæring. Vi tilbyr deg også muligheten til å velge informasjonskapsler (avanserte innstillinger for informasjonskapsler).





