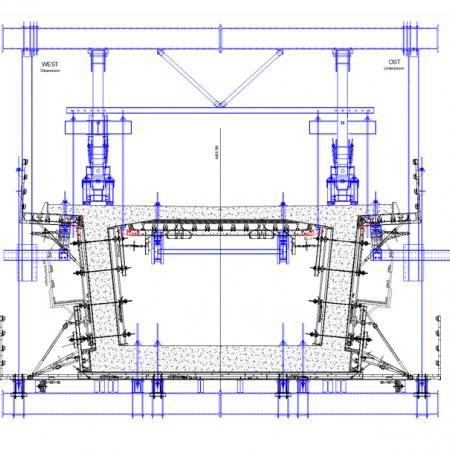
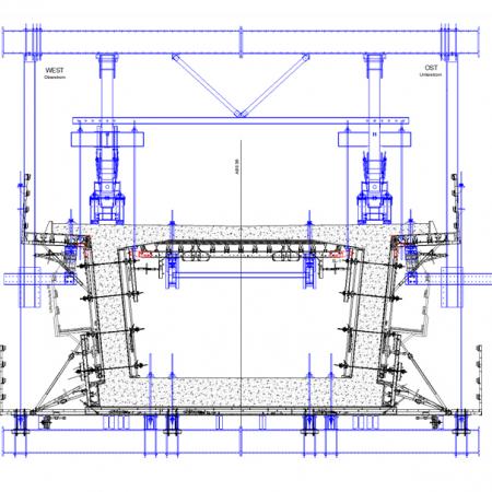
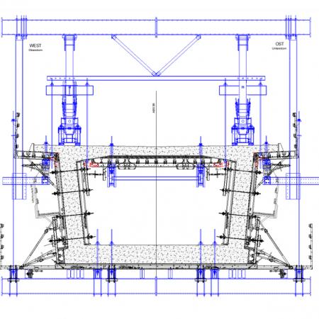
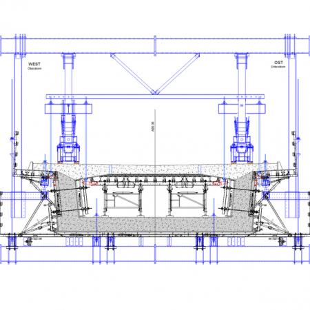
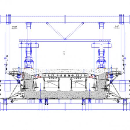
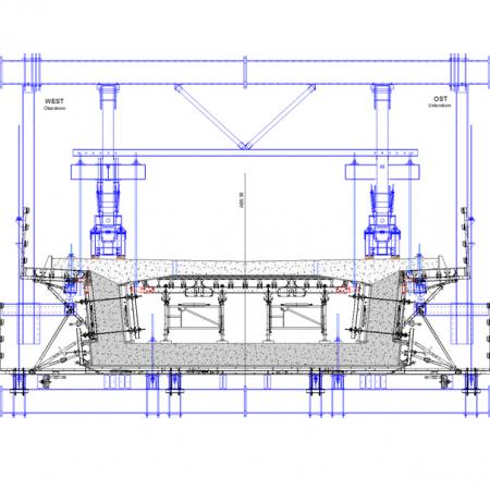
In Ehring bei Mühldorf am Inn entstand eine neue Bahnbrücke. Das Spannbetonbauwerk hat eine Breite von 12 m und ist auf den 2-gleisigen Ausbau der bisher 1-gleisigen Strecke ausgelegt. Die alte Bahnbrücke über den Inn stammt aus dem Jahr 1895 und soll nach Erstellung des neuen Bauwerks abgebrochen werden.
Alle gelisteten Felder sind Pflichtfelder. Durch die Nutzung unserer Seite werden für die Ausführung des Dienstes notwendige Cookies auf Ihrem Endgerät gesetzt. Erfahren Sie mehr dazu in unserer Datenschutzbestimmung https://www.doka.com/data-privacy.
Sie können nun weitere Unterlagen zum Download anfordern, indem Sie zurück zum QR-Code-Reader wechseln. Sie können infolge Ihre Kontaktdaten für eine neuerliche Übermittlung von Unterlagen speichern.
Technisch notwendige Cookies sind für eine ordnungsgemäße und sichere Funktionsweise der Website und die Verwaltung Ihrer Einwilligungen erforderlich. Wenn Sie mit der Verarbeitung Ihrer Daten durch das Setzen technisch notwendiger Cookies nicht einverstanden sind, können Sie nicht auf die Website zugreifen.
Wir verwenden außerdem mit Ihrer vorherigen freiwilligen Einwilligung weitere Cookies und Applikationen Dritter. Dies hilft uns, eine optimale Performance unserer Website zu gewährleisten, insbesondere
Indem Sie auf "Alle Cookies zulassen (inkl. US-Anbieter)" klicken, stimmen Sie der Installation und Verwendung aller Cookies zu. Indem Sie auf "Ausgewählte zustimmen" klicken, stimmen Sie den von Ihnen mit den Checkboxen ausgewählten Cookies zu. Damit kann auch die Übermittlung von Daten in Drittstaaten wie die USA einhergehen. Soweit die von Ihnen gewählten Einstellungen auch Anbieter umfassen, die Daten in Drittstaaten übermitteln, in denen kein Angemessenheitsbeschluss nach Art 45 DSGVO und keine angemessenen Garantien nach Art 46 DSGVO bestehen, erstreckt sich Ihre Einwilligung auch hierauf. Hier kann das Risiko bestehen, dass Ihre derart übermittelten Daten dem Zugriff durch Behörden in diesen Drittstaaten zu Kontroll- und Überwachungszwecken unterliegen und dagegen keine wirksamen Rechtsbehelfe zur Verfügung stehen. Sie können alle einwilligungspflichtigen Cookies ablehnen, indem Sie auf "Ablehnen" klicken oder Ihre Cookie Einstellungen anpassen, indem Sie auf Cookie Einstellungen am Ende dieser Website klicken und die entsprechenden Checkboxen verwenden. Sie können Ihre Einwilligung jederzeit grundlos mit Wirkung für die Zukunft widerrufen, indem Sie zB auf Cookie Einstellungen am Ende dieser Website klicken.
Weitere Informationen zu unseren Cookies finden Sie in unserer Datenschutzerklärung. Wir bieten Ihnen auch die Möglichkeit, Ihre Cookies auszuwählen (Erweiterte Cookie-Einstellungen).






