Laka ramovska oplata, bez upotrebe krana, za temelje, zidove i stubove


Ramovi elemenata sastoje se od otpornih šupljih čeličnih profila i otporni su na uvijanje bez dodanih ukrućenja. Naročito dug vek trajanja obezbedila je kvalitetna galvanizacija. Frami Xlife ploča omogućava maksimalan broj primena sa izvanrednim rezultatima betoniranja. Specijalna struktura površine sprečava pucanje i prodiranje vode u području otvora za klinove.
Udarcem čekića po Frami stegi paneli se privlače i spajaju, a spoj je otporan na vuču, bez zazora i poravnat.


Žleb duž cele ivice rama omogućava postavljanje Frami stege na bilo kom mestu. Tako se elementi mogu premeštati kontinuirano uvis, bez prethodno zadatog rastera, jedan uz drugi. Prilagođavanje stepenicama, kosim ravnima i neravninama tla vrši se bez dodatnog napora.
Frami Xlife univerzalni elementi omogućavaju prave uglove do debljine zida od 60 cm, u rasteru od 5 cm.


Za tupe i oštre uglove postoje pocinkovani Frami zglobni uglovi.
Frami stezač za poravnanje sa svojim rasponom stege od 15 cm se tačno uklapa u raster elemenata. Na taj način je po zidnoj površini potrebno samo jedno izjednačavanje.


Frami ugaoni anker profil izmešta gornji anker preko elementa radi lakšeg uklanjanja oplate.
Sistem ankera za temelj sastavljen od ravnog ankera i stege za temelj za debljine zidova od 10 do 80 cm sa rasterom od 5 cm, potpuno bez ankerisanja kroz beton i bez drvenih podupirača.


Stega za temelj i perforirana traka sa rasterom od 5 cm fiksiranju donju ivicu elementa.
Lučni lim proširuje oblast primene elementa na kružne građevine u poligonalnoj formi: ekonomično rešenje ako je dozvoljeno odstupanje od kružnice.

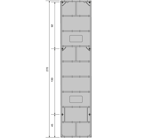
Robusna konstrukcija i asimetričan raspored ankera dozvoljavaju puni hidrostatični pritisak kod elemenata visine 270 cm.


Kod elemenata visine 300 cm, potrebna su samo tri ankera po visini.
Širok spektar dodatnog pribora osigurava oplatu pri betoniranju, čak i kod visina betoniranja od 2,70 m ili 3,00 m koje se izvode u jednom cugu.


Zahvaljujući svom specijalnom perforiranom rasteru, Frami Xlife univerzalni elementi širine 75 cm i 90 cm su pogodni za ekonomično izvođenje čeonih oplata, spoljnih uglova i oplata stubova.
Frami Xlife elementi su, horizontalno postavljeni, naročito pogodni za ekonomičnu izradu temelja.


Frami Xlife elementi se mogu veoma jednostavno kombinovati sa Framax ugaonim elementom oplate I pomoću adaptera profila.
Postizanje betonskih površina željenog kvaliteta predstavljaju uvek novi izazov. Kompanija Doka nudi…
Nema rezultata pretrage.