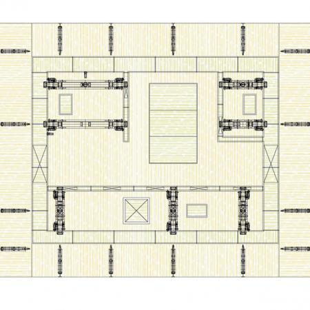
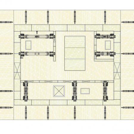
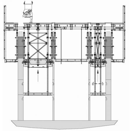
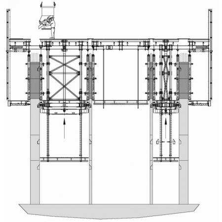
Stockholms högsta byggnad Kista Science City utgör ett landmärke. Genom användning av Doka Plattform SCP kunde byggnadskärnan uppföras ytterst snabbt, säkert och ekonomiskt
All listed fields are required. By using our site, necessary cookies are set on your device for the execution of the service. Find out more in our data privacy policy https://www.doka.com/data-privacy.
You can now switch back to the QR code reader to request information on other topics. You have the option to save your contact details to be automatically used for your next request.
Tekniskt nödvändiga cookies krävs för att webbplatsen ska fungera på ett korrekt och säkert sätt och för att administrera ditt samtycke. Om du inte samtycker till att dina uppgifter behandlas genom att tekniskt nödvändiga cookies sätts, kommer du inte att kunna komma åt webbplatsen.
Vi använder även andra cookies och tredjepartsapplikationer med ditt föregående frivilliga samtycke. Detta hjälper oss att se till att vår webbplats fungerar optimalt, i synnerhet
Genom att klicka på ”Tillåt alla cookies (inkl. amerikanska leverantörer)” samtycker du till installation och användning av alla cookies. Genom att klicka på ”Godkänn valda” samtycker du till de cookies som du har valt med kryssrutorna. Detta kan också innebära att uppgifter överförs till tredje land, t.ex. USA. Om de inställningar du har valt även omfattar leverantörer som överför uppgifter till tredje land där det inte finns något beslut om adekvat skyddsnivå enligt artikel 45 i GDPR och inga lämpliga skyddsåtgärder enligt artikel 46 i GDPR, omfattar ditt samtycke även detta. Det kan finnas en risk för att dina uppgifter som överförs på detta sätt kan bli föremål för åtkomst av myndigheter i dessa tredjeländer för kontroll- och övervakningsändamål och att det inte finns några effektiva rättsmedel mot detta. Du kan avvisa alla cookies som kräver samtycke genom att klicka på ”Avvisa” eller genom att justera dina cookieinställningar genom att klicka på cookieinställningar längst ner på denna webbplats och använda motsvarande kryssrutor. Du kan när som helst återkalla ditt samtycke med framtida verkan och utan att ange något skäl genom att klicka på cookieinställningar längst ner på denna webbplats.
Du kan hitta mer information om våra cookies i vår integritetspolicy. Vi erbjuder dig också möjligheten att välja dina cookies (avancerade cookie-inställningar).





