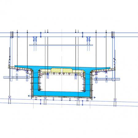
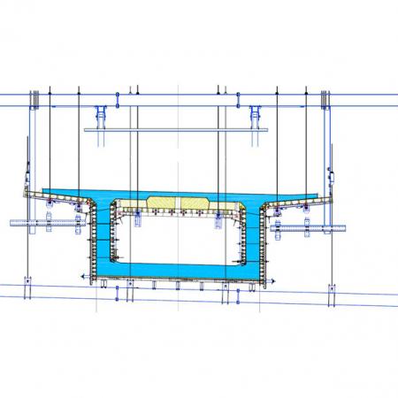
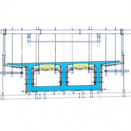
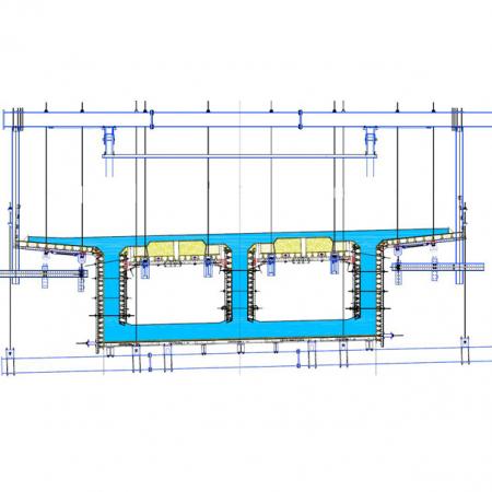
Stavební úsek R 513 na jihu od Prahy zahrnuje 236 m dlouhý most přes Vltavu a je jedním z nejnáročnějších stavebních úseků dálničního okruhu z hlediska bednění.
All listed fields are required. By using our site, necessary cookies are set on your device for the execution of the service. Find out more in our data privacy policy https://www.doka.com/data-privacy.
You can now switch back to the QR code reader to request information on other topics. You have the option to save your contact details to be automatically used for your next request.
Technicky nezbytné soubory cookie jsou nutné pro správné a bezpečné fungování webových stránek a správu vašeho souhlasu. Pokud nesouhlasíte se zpracováním svých údajů prostřednictvím nastavení technicky nezbytných souborů cookie, nebudete mít přístup na webové stránky.
S vaším předchozím dobrovolným souhlasem používáme i další soubory cookie a aplikace třetích stran. To nám pomáhá zajistit optimální fungování našich webových stránek, zejména pak
Kliknutím na „Povolit všechny soubory cookie (včetně amerických poskytovatelů)“ souhlasíte s instalací a používáním všech souborů cookie. Kliknutím na „Souhlasím s vybranými“ vyjadřujete souhlas se soubory cookie, které jste vybrali pomocí zaškrtávacích políček. To může zahrnovat i přenos údajů do třetích zemí, například do USA. Pokud vámi zvolené nastavení zahrnuje také poskytovatele, kteří předávají údaje do třetích zemí, v nichž neexistuje rozhodnutí o odpovídající ochraně podle článku 45 GDPR a vhodné záruky podle článku 46 GDPR, váš souhlas se vztahuje i na tuto skutečnost. Může existovat riziko, že k takto předávaným údajům budou mít přístup orgány těchto třetích zemí za účelem kontroly a monitorování a že proti tomu neexistují účinné právní prostředky. Všechny soubory cookie, které vyžadují souhlas, můžete odmítnout kliknutím na „Odmítnout“ nebo úpravou nastavení souborů cookiesouborů cookie kliknutím na nastavení souborů cookie v dolní části této webové stránky a použitím příslušných zaškrtávacích políček. Svůj souhlas můžete kdykoli odvolat s budoucí účinností a bez uvedení důvodu kliknutím na nastavení souborů cookie v dolní části této webové stránky.
Více informací o našich souborech souborů cookie najdete v našich zásadách ochrany osobních údajů. Nabízíme vám také možnost výběru souborů cookie (pokročilé nastavení souborů cookie).







